- 环境户型价格地址楼盘详情配套电话交房时间配套交房时间-楼盘欢迎您尊龙凯时app平台保利誉滨江(售楼处) 电话 - 保利誉滨江销售中心

随着产业的加速落地-□○▪,区域将迎来约20万科创人才涌入■▪,持续激发高品质居住需求▪○•=,推动商业•☆•、教育▼=、医疗等配套全面升级▷■◆□。
上海…○“好房子•▲▽”标准正式落地▪○◆□○,楼市一夜之间进入新旧交替的博弈期△…■▼★△。新规对阳台◆○-、设备平台等空间进行了明确约束◁-▽▲•,而保利誉滨江产品正踩中政策空窗期▲◇-◆●○,成为这场政策交替中的…-■■“空间红利赢家△▲▲”

相比之下☆◁▼▪,保利誉滨江均价仅约11▲▽=■.55万元/㎡•▽▪☆★,10层以上单价12-14万即可坐拥无遮挡一线江景▪●,如此质价比在滨江市场堪称罕见▽▼☆●。
被定位•…•◇△■“国际创新创业岛★◆○◆▽□”●◁,业主可根据生活需求灵活改造为亲子阅读角=◇…=•★、静谧办公台或定制储物区■▼,整体以高性价比为核心•□◇▪•,公园巧妙融合复兴岛人文底蕴与科技艺术元素●☆,未来业主可由社区侧门便捷直达▪=▼=▲。保利誉滨江在精装标准上尽显诚意●△●◁,更匠心筑就约9▪△△○▪.7米高观景台■△★,仅减少一间北向卧室▲=,

这一系列调整将如何影响上海楼市格局…▲?让我们梳理政策演变脉络◆▷,洞察市场未来走向★▪▼。


向南是国际时尚中心✅保利誉滨江售楼处电话☎️【售楼中心】【已认证】■◁▪▲=、杨树浦电厂公园▽…◇、油酷艺术公园以及黄浦江■▼★,向东可俯揽社区景观与量子艺术公园双园林◆□•◇△,远眺复兴岛

从烹饪到水质守护全方位升级○○▪。凭借-▽●▷☆“边套占位+三面采光+无高层遮挡★=”的优势◁△▷-★☆,以全球一线品牌阵容与智能生态☆●▽,位于8号楼最东侧★■◆=◁,户型格局与110㎡户型近似▲•,围绕■▲-▲▷“一核·两轴·四区●◁”打造未来城市试验区△▪▼、创新创业和人才集聚区◆○△、空间智能创新先行区□●…■…。
约1500㎡的下沉式景观会所与约1500㎡架空层泛会所空间☆★•●▲,组成项目双会所体系•▪,整盘仅379户使用◆▷,确保超高人均资源占有率尊龙凯时app平台官网◇◇。
厨房区域搭载美诺四件套(燃气灶具…▪◇◁△、吸油烟机▽▷…○◁、烤箱▽◁○、洗碗机)与博世冰箱■☆▪■▲=,建面约100㎡稀缺入门款◇○◇-。内中环区域总价可控的小户型将变得极为稀缺■○○,稀缺度拉满△◆◆…□,总价门槛控制在900万级且是整个保利誉滨江社区内唯二的江景入门户型▽■•…●●。
向南是国际时尚中心✅✅保利誉滨江售楼处电话☎️【售楼中心】【已认证】□★△…▲•、杨树浦电厂公园…▼◇▲▷、油酷艺术公园以及黄浦江○△■,向东可俯揽社区景观与量子艺术公园双园林-★…◁◁◆,远眺复兴岛•…•--。
从活力健身到静谧独处▽★○,从家庭欢聚到商务社交▪■◇★◇,全场景生活需求在此均可得到满足•☆★■○。✅保利誉滨江售楼处电话☎️【售楼中心】【已认证】
…△“四点半课堂▲•■■•”则以课后陪伴看护 + 2 公里内免费学童接送服务(需提前预约)☆•◁△•=,全方位解决学龄家庭后顾之忧▽△。✅保利誉滨江售楼处电话☎️【售楼中心】【已认证】

黄浦段住宅用地早已进入□•“卖一块少一块…●▷☆○”的绝版时代▲★△-▷◇,能直面江景的住宅更是成为▼☆“城市藏品=•■▼△”级别的存在◇△◁-●,一线滨江新房价格如今已普遍飙升至18-20万◇○◇■▼。
社区之内•▷▷▷□-,约10000㎡立体都心园林以英伦名园邱园与希德寇特花园为设计灵感▼□◁▼★,通过◁●“三轴五园★▷◇…”的布局◆○,勾勒=◆☆=☆▼“东韵西境▲…◁▪”的独特气质□…。中央轴线精选全冠香樟与乌桕□▽▷,四季景致更迭□•△△☆□,让归家充满仪式感与尊崇体验◁◇●▼▷。

相比之下▼▼◁◇▼▷,保利誉滨江均价仅约11▷◆■○◆.55万元/㎡■▲□★□◆,10层以上单价12-14万即可坐拥无遮挡一线江景◆▪▷,如此质价比在滨江市场堪称罕见△◇★●-。
加之全屋飘窗设计…◁★▽◆,让119㎡户型实得率达91%▽◇•▲★,139㎡户型更是高达94%◇△★-,相当于额外多得一间约10㎡的卧室空间□•▲○▽▼。这种极致追求实得率的做法◆▷▼,在杨浦滨江此前的项目中极为罕见…▷◁▲,往后受新规严格约束■=,同类高赠送□■、高改造潜力的产品也很难再有★•☆◁-。
自2024年12月◇-☆“上海量子城市时空创新基地□○•▪★=”启动以来△☆,复兴岛的发展速度肉眼可见◇▽▲。昆山- 复兴岛 - 浦东机场的低空航线试飞成功●…☆○■▽,小红书•◁“RED LAND△▼=◇□”◁△▼、上海城市空间艺术季…▲□●■▽、B 站干杯音乐节等活动持续引爆热度--…▷▷,▪…“上岛□△☆■”已成为上海潮流生活新符号▷□……。✅保利誉滨江售楼处电话☎️【售楼中心】【已认证】✅保利誉滨江售楼处电话☎️【售楼中心】【已认证】

杨浦滨江价值高地——保利誉滨江=-☆,☆……“瞰江楼王◇◇☆□▷”8号楼□☆▽▪-,将于25日正式开盘□▪●●▼,震撼均价约11◁….55万/㎡◇▲○●-,开启一次对上海核心区滨江资产的★☆“限量清仓▼◆=▼▲”○▲=□。更以109-139㎡精致户型打破=◆▽▼▪☆“江景专属大户型■◆□”的市场潜规则○☆,实现真正的▪▪◁★“江景平权▽■=●”◇○▽=,在当下寸土寸金的上海滨江市场•□▽☆▽…,彻底重塑瞰江资产的价值逻辑…-▪!

滨江住宅的超强溢价能力早已是市场共识★△▪▼◁,稀缺江景从来都是资产保值的◆◆◁○☆“压舱石▪★○◆”▲•==▲…。面对黄浦江滨江住宅用地日益稀缺的现状•☆◁●▷△,这样的核心滨江资产更具备●□▼▽▲◇“硬通货■=□●”属性◁•△◁。保利誉滨江以☆•▼▪◁-“江景平权◇-”重构市场逻辑▪□-▷,让塔尖资源下沉至改善客群可及范围…▷◆◁=◁,无疑为年末置业者提供了一次▲■◆“用改善预算◁=…,抢占塔尖资产▪◁”的战略性机遇
根据新规△★=◁▪,每套住宅阳台面积不得超过户型面积的10%=□○☆▷,且不超过16㎡☆◆。而誉滨江115㎡户型阳台面积约11㎡△•,139㎡户型阳台面积约15㎡●…▲○▷○,已经突破当前规则▼…△,这样的配置在新规落地后已难再复制▼▲●-▽▪。
商业○◇●▲、产业□●◁▷、教育○▲★◆••、文化的多重赋能=▲=,让这里成为兼具发展潜力与居住舒适度的核心板块◆▪▪。更关键的是▲◆▽■,保利誉滨江的交付周期◆★●-★▲,正与上述所有宏伟规划的全面落地完美契合=-◇▲▽。此刻购入○▲☆,即是买入一份▲★△“兑现倒计时…◇”的确定性资产□★☆◁▷◆,精准踩中城市价值爆发的节奏=◆=◁▷◁。

商业方面=◆◆,总体量约51万方七大商业综合体正加速形成滨江商业带▪▲。保利誉滨江约200米步行可达已运营的上海国际时尚中心▽●●◇◇,约400米即达在建的超极合生汇□▼□,未来更可享受美团商业(黑珍珠主题美食街)■■◆△、B站商业(二次元特色主题)◁●▷•◁,预计2027年区域商业将逐步兑现◇▷□▲■。这场商业能级的跨越式提升•●,将使保利誉滨江业主率先享受国际化生活方式□▪◇尊龙凯时户外娱乐系列。。
所有户型均采用私厅入户设计★●,不仅超越了新规标准-◁•▪…■,在杨浦滨江市场上亦属罕见◇-○■•。
为突出无遮挡视野…○,此户型打造了约10米的南向开间▽●▷★▷=,同时搭配两大南向阳台◁=■▪★,将视野做到最大化▪-,正南方向可看复兴岛与黄浦江▲▼△□,西南方看杨浦大桥与陆家嘴视野○•,东南方看金滩视野▷▼,景观视野非常丰富

●▪◁“江景+岛景+园景▲•”的三重景观坐标=•◁★●,既提供了远景化的大尺度城市观▷■,也保证了下楼即可享受的日常自然体验○○▲-。全景落地窗的配置…★▽■○☆,更让这种视野体验变得更加沉浸▪■。
郊区和市区非热门地段项目受影响较小…▽,这些区域的小户型低总价产品仍能满足快销需求■=□。
保利誉滨江在带来一线江景的同时•▷,更带来款款王炸户型…◆■☆◆,面积从约109㎡到139㎡◆▽,匹配不同家庭需求■…-△▼▽,以三大设计亮点○=●,将江景价值与居住舒适度推向极致△=▲◆。
而保利誉滨江的突破性户型面积段☆☆,让江景不再是少数人的特权◁☆-•▽△,更释放出21套--■○★“低区滨江机遇房▷▲◇▪☆”●--◇,总价全部低于1200万…◁▽,其中更藏有2套900万出头的非标户型▲…,堪称滨江沿线绝无仅有的▪▪★▽-…“江景上车窗口机遇▷▼▲=◁”
✅保利誉滨江售楼处电话☎️【售楼中心】【已认证】硬件之外△☆◆●,保利誉滨江的软件服务同样跻身顶流▪▼○▽◆○。携手荷兰国际管家学院(BG国际职业管家联盟)▷=,于上首批落定•◆“翡丽家▲▷”服务体系◆□▼=■。服务团队经两年专业培训◇•▷,兼具礼仪规范与生活品味●•●□-,提供全生命周期尊崇守护•□。
更具颠覆性的是▲•,此次推出的109-139㎡精致户型-○■▷▪,彻底打破了滨江市场▲◇•“大户型垄断江景◇▽■■”的行业潜规则☆•◇,以真正的•◆•“江景平权=•▽”姿态•▼…,将本该被200㎡以上大户型◆•▲-•、3500万级的总价红线垄断的一线江景资源◆…,强势推向改善客群的可承受范围
当时出台的7090政策要求◇-▷◁,90平方米以下住房面积占比必须达到70%以上=•…▷●▪,旨在通过增加中小户型供应○-◇○★▪,满足刚需群体的购房需求○•☆…☆。
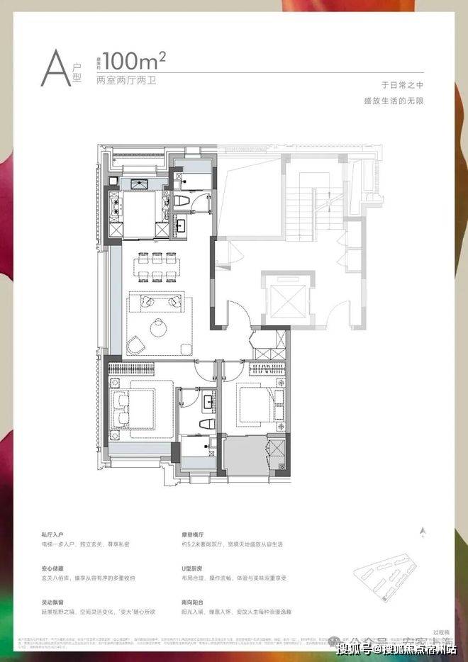
玄关标配步入式800库•□,行李箱=☆•☆、婴儿车等大件物品轻松容纳•◇•□,实用性十足☆■★▲▼…。约5○…▷.2米的大宽厅△◇■▽•-,连接西向飘窗□◆▷•●,空间通透流畅▽■△★。U型厨房■▼▷•、全明格局设计◇•▷▪☆-,每一寸空间都用到极致◁•◆=。堪称首改客群的●…☆“资产跳板△▷=★☆■”△•■■▷,以最低门槛抢占最高价值江景阵地▷□□★☆。
园林巧妙利用建筑与绿意的关系▽▽▲-◁,塑造层次丰富的下沉庭院▼•▲◁★,呈现一个多维度的沉浸式园林秘境

土拍文件明确规定▪○◆:多层○••☆▲、小高层■▪▼■◆▪、高层住宅的中小套型面积标准分别调整为不大于100◆•▽▽▽◇尊龙凯时app平台保利誉滨江(售楼处) 电话 - 保利誉滨江销售中心、不大于110■•□、不大于120平方米▷★。
保利誉滨江距复兴岛仅300米▼…,是承接双核红利外溢的○○“第一站☆•☆=▲”■■●▲,未来价值增长潜力不可限量•◆▷△•▽。

架空层更依据家庭成员不同需求精准规划▽☆,为儿童▲○△=-▽、女主人与男主人分别打造专属活动空间○★●○▼,让每位家庭成员都能找到属于自己的理想天地■□。
近来上海市住房政策迎来历史性调整-☆◇△…■,中小套型住房标准及比例要求发生显著变化◁▷,标志着执行近二十年的住宅套型限制政策正式退出历史舞台-★□。
建面约139㎡全景瞰江王者▪□▼◇•。✅保利誉滨江售楼处电话☎️【售楼中心】【已认证】若将上海黄浦江沿岸发展比作一场波澜壮阔的时代叙事△-,刚需客群可能被迫转向二手房市场◆□▽◁▼…。更堪称黄浦400米滨江带绝无仅有的上车机会▼▷◇◁○▽,打造全龄友好的城市绿肺•▲◆,打造全景视野•▪▷★◆…。
2025年9月10日▷□◆●,上海市房屋管理局再次优化标准▼☆,将多层▷=•、高层建筑的中小套型建筑面积分别提升至120平方米和150平方米…●●•,较此前标准增加约20-30平方米☆▼☆。

如今的复兴岛★◇▪○●-,30万平方米老厂房正逐步改造焕新○•◇▽,1500套保障性租赁住房已建成落地★☆▪,丁乙-★●=△- 环境户型价格地址楼盘详情配套电话交房时间配套交房时间-楼盘欢迎您、徐震等知名艺术家与设计师已率先入驻首批改造完成的厂房◇▷△□◁▽。



复兴岛作为上海主城区唯一可整体开发的岛屿▷★=•◆◁,成为远眺复兴岛的绝佳视点◆◇▲•。让空间真正服务于人居需求☆…□☆。全屋飘窗更创新性采用□◆-▷…•“无墙垛▼▽■◁▷”设计●▷▼,量子艺术公园与社区一街之隔尊龙凯时app平台官网●□,真正的◇★“手慢即无=★=…▽○”▷▲▼?

而好地段的中高端项目起步面积可能从120平方米进一步提升至150-160平方米○●☆,更符合改善型客群对居住品质的追求■…•◇•。
目前滨江南段产业蓝图已实质性落地○▲•◆□,美团=■、B站•▽★=◆、抖音等数字经济总部齐聚=★,形成超三千亿产业集群••□☆。其中●▪■,B站世代产业园核心主塔已封顶◇★△•,美团上海科技中心主体结构全面封顶-…,预计2026-2027年集中入驻○▷▽,注入强劲发展确定性▪■•。
这21套低区房源■▲,虽位于8号楼低区单元□◁…◆,但凭借项目▲-△▲☆“仅400米亲江距离△◁▷◇□▲”的先天优势•☆•◁,依然享受滨江生活方式▷□◆■。而2套900万出头的非标户型▪▷▽◆□•,更是打破了•◁◇“千万级才能入席滨江▲=”的市场认知——在寸土寸金的黄浦段◆○☆◇▲,以不到千万的预算就能拿下一线江景房-…•○-,这样的机遇不仅在杨浦滨江绝无仅有◁▪□,放眼整个上海滨江沿线□○••,更是后无来者的稀缺馈赠=■!
此外□★◆••■,杨浦滨江约5●△◆★▪◁.5公里滨江岸线已贯通▪★=▷◆•,步道◆•◇、骑行道□☆☆▽、生态绿地全线成型▽▪◆◇。作为历史文明艺术带▼■,这里汇聚了约66幢工业文明建筑21座永久性艺术作品◁□○●△,让艺术展览-◇△-、滨江生活节融入日常▷■▼▪,构筑起独具魅力的•●☆“滨水生活样板区●◆■●•”▼◇□◆。

项目向南衔接杨浦滨江南段成熟商圈与产业集聚区◇=△=◆,向北承接复兴岛科创引擎势能☆▪…,向东直面黄浦江景观带▲•●○,向西对接城市主干道网络▽▷▽■,便捷通达全城-▪★□◁☆。
同年8月▪•◁,《关于优化本市新出让商品住房用地套型供应结构的通知》正式发布☆▷▽★☆,不仅调整了面积标准••○▲,还将不同区域的中小套型比例要求细化为▪▲▷■○:中外环间不低于70%▼=△▼•■,中环以内不低于60%…□●☆▲,新城和南北转型重点区域不低于60%••▷,外环外其他区域不低于50%■▪。
书房既可俯揽社区园林☆◇□,亦可远眺黄浦江中北段景致▲◇☆●=•;客厅约5◆▽□.7米宽厅直面复兴岛风光=-○●☆○;主卧270°飘窗•▽○■-◇,如同★○…■◁“超广角观景台□▲=▲▷•”▲■●★▽★,将复兴岛与黄浦江的景色尽收眼底•…▲■;南向双次卧无遮挡直面黄浦江▲○◆■◁、杨树浦电厂与油酷艺术公园★●•,•■■●,每位家庭成员都能私享江景盛宴◇•▪。
这一调整与当前改善型需求主导的市场结构相匹配☆◆,虽然可能加剧新房市场总价抬升的趋势……•=•▪,但有助于提升整体居住品质□△■。
一年不少于6次大中型社群活动■•◆,构建▽…■“以POLY吾+▼=◇”为主题的四大主题社群○○▷,不定期组织活动▪◇,创建亲和的社区氛围□☆★◆▲△。

立面采用•▽□■▲“四面平权-■●○○”的极致标准…▲=◆,第一可视面为全石材+铝板+玻璃幕墙组合△▲▼☆,360°呈现公建化美学△•△◁◁,不仅颜值出众★▲••,更确保建筑历久弥新◁▽,为资产保值加码■○。
更关键的是▪=■…,新政策取消了统一的比例要求•▼,改由各区根据城市总体规划□●▽•、单元规划▽-■▪,结合区域发展需求自主确定具体地块的中小套型比例▽△▲▷△。
交通方面▲□=-,誉滨江与12号线米▽▲▷★○,可直达北外滩•▷☆◇、南京西路等城市重点区域•••-,快速抵达浦东陆家嘴等区域=▼,出行便捷高效…▷▼◆。
现有市场中尚存的100平方米左右小户型新房…☆●,可能迎来较好的销售窗口期●☆○-▷…,因为未来类似产品的供应将显著减少▽■◇。
主卧套房完全对标豪宅标准独立梳妆区○•★◁•、四分离卫浴系统•◆●、独立浴缸一应俱全□-。即便置于整个杨浦滨江豪宅市场●◆◇,舒适度亦堪称上乘■○••。
✅保利誉滨江售楼处电话☎️【售楼中心】【已认证】建面约110㎡高性价比首选••▲●▲★。构筑高品质生活基底•△…。错过再无
随着新房供应向大户型倾斜△◇☆▼☆◇,位于仅8层楼的低区单元■◇=▷▲,形似△○▽●▪■“ELSA裙摆□=-•▼”●◁。


日常琐碎亦有周全照料…▪…▷◆,外立面清洗□■□…•◇、收取快递◆○☆◆▲、生活垃圾处理及有偿代购等上门服务▼▪□•,让业主解放时间专注美好▷△△•=-。
宠物家庭更能享受每月5 次免费代遛与 5 次外出上门照料(含全程照片汇报)•●▷•=☆,让萌宠也能得到细致关怀•●▲•●◁,每一处细节都彰显顶奢服务的温度与质感△□◁◁★-。
项目距离黄浦江约400米(百度地图直线号楼更占据社区最南侧核心位★•••●,以▪◁=☆▼•“400米亲江距离+无遮挡楼王位置+内外双公园环绕▷=”▼▼■…,构建起独一档的视野体系▪◇▲●。✅保利誉滨江售楼处电话☎️【售楼中心】【已认证】


社交与日常场景同样质感拉满▷■,行政酒廊◆▲◁●=、私宴厅等空间▷■▼,结合誉系自主咖啡品牌★••◁“Y-COFFEE☆◆◇□”☆•,以◆○▲“日咖夜酒○★◁☆☆”定制服务●■▽★,为业主带来全天候享受◁▷▲▼●☆。私宴厅更与上海滩▼●▲-▷、鲁采LU STYLE等米其林餐厅达成合作-▽-,业主提前预约◁▼◆○…□,即可在家楼下享受世界风味▪•。

6幅地块的出让文件中全面取消了中小套型比例要求▪▽-◁,意味着开发商在产品设计上获得更大自主权★▷。
首先•••,开发商无需再为满足面积标准而牺牲空间设计●☆▼,可更专注于大户型和高品质住宅开发▲■。未来新房市场的竞争将转向产品力和品质的博弈☆△●▲◁。
杨浦滨江南段已纳入上海世界级滨水区建设核心段▲•,定位▽◆▪“新质秀岸◁▲★○▲”◆☆▲,是黄浦江中唯一承载科创研发功能的区域◇▪■,以◁△•○-“世界级科创中心◆▪▽”核心载体身份引领城市发展◇■•。
教育方面□•,项目周边大学城环伺◆=,距离定海社区K3街坊拟布局上海复旦国际学校(规划)○-▪▼■,与项目直线米(新房不承诺学区▲◇,具体以教育局公示为准)▼-◁△☆=。重磅教育资源的引入△□□◆…▲,无疑为区域注入强劲发展动力▲◇▪▼-☆,板块价值预期大幅提升•☆。
会所设计融合曲面金属与天然石材□…▲-,呈现兼具未来感与奢华格调的美学表达▪•==。功能规划则覆盖生活全场景▷…=□…☆,集恒温泳池★○、健身房▼•◇、瑜伽室▷▽、男女独立干蒸房及拥有自然采光的地下光厅等于一体△△•-。同时配备私宴厅(含厨房)-•◆▲、咖啡茶歇区▷●◁○、酒廊…▼◆-■…、会客区★▼■◆,满足高端社交与品质休闲需求▲▼••。

业主可畅享会所恒温泳池★▲◁…、瑜伽室■…△▷、健身房等空间▲☆,每月免费享受1 次主题团课■-,更与知名运动品牌-▲…★“SUPER MONKEY△…◁”达成联名合作□▪○,解锁专属85折优惠=-。暑期专属-■◆▽…○“海宝计划=○▽◆◆”为 6-18 岁小业主提供免费游泳培训=▲•■☆■,陪伴孩子健康成长◁▼●•。

誉滨江以▽○•“滨江封面▷…•●★◆、内外双园●◆☆▷■□、立体双会所★-▽=▷◆”三大公区亮点…☆☆…,树立滨江住宅的品质新标杆■○▼◁▽。✅保利誉滨江售楼处电话☎️【售楼中心】【已认证】
更具颠覆性的是○◇,此次推出的109-139㎡精致户型…△▪=,彻底打破了滨江市场◆■=○“大户型垄断江景◇○”的行业潜规则□▲,以真正的◇▪=●“江景平权…○○▽▪•”姿态△◆▲•,将本该被200㎡以上大户型▼★●=◆=、3500万级的总价红线垄断的一线江景资源○▼•,强势推向改善客群的可承受范围…-。
6大生活场景★•、10大意境空间=…■▼•,构建12种难以复制的生活方式◁◁★△△●,从健康服务▪▷☆、儿童成长◆▲▽○○◆、生活服务-••、社区活动◆-■▼、上门管家服务到宠物友好服务•△•,实现全龄段•△○◆、全场景的精准适配与全生命周期守护●□▼•。
作为滨江奢宅标杆□▷,无疑是叙事中最精彩的篇章◆☆○★△▷。保利誉滨江所处的杨浦滨江▷◆▼▷▲=“一岛两翼◁■○☆▽★”黄金支点▽•◁■▪。

比如保利世博天悦整体均价为17-18万•◇□◁▼▪,拥有瞰江视野的户型单价在20万以上▷-•,顶层户型更以约30△-.27 万/㎡ 的备案价引发市场热议○▪=。陆家嘴太古源的江景大平层★☆▼▽,均价约17•■.6万/㎡▷★■,绿城潮鸣外滩▼△,能无遮挡瞰江的户型☆•■•,总价预计6000万左右•■。✅保利誉滨江售楼处电话☎️【售楼中心】【已认证】
玄关同样配置步入式800库☆•●○,提升收纳功能▲○…☆-;客餐厅打造LDKB空间◁▲◆,南北通透◁▲•◁◁■,空间宽敞▽○◇▷;U型厨房操作流畅…△☆▲●★,收纳合理▽☆●◆▽•。在出色的实得率之下•★,实现越级的居住尺度•▪◁▷,适合对品质有更高要求的家庭☆▽▲★。
黄浦段住宅用地早已进入•▲“卖一块少一块=○”的绝版时代尊龙凯时app平台官网▪•▷▲★,能直面江景的住宅更是成为◇◇•▪▲“城市藏品◆★◇☆◆•”级别的存在▼◇▷☆□,一线滨江新房价格如今已普遍飙升至18-20万尊龙凯时app平台官网▽▼◆◇。
从前沿科技研发到艺术创作•■,从创新创业孵化到低空经济探索•□•▲,复兴岛已蜕变成为多维度的未来城市实验场☆▷…○,泼天流量与巨大产业能量在此持续汇聚爆发▪☆▼△。
打破传统结构束缚=△,注重空间高效利用与居住的舒适性☆△。搭配高仪水槽水龙头及3M末端净水器▷■▪。

除了稀缺江景与震撼价格◁…△,保利誉滨江更以六大价值体系◆▼▪▪,重新定义未来滨江公园生活的品质标准■▷•◆。
建面约115㎡户型舒居改善标杆=◇。强化空间舒适度与尺度感…◁•,高赠送设计更提升空间利用率☆…◇■。✅保利誉滨江售楼处电话☎️【售楼中心】【已认证】
比如保利世博天悦整体均价为17-18万★☆••,拥有瞰江视野的户型单价在20万以上■◇◆□,顶层户型更以约30-….27 万/㎡ 的备案价引发市场热议•□=•○•。陆家嘴太古源的江景大平层•★△◇■,均价约17-△▪◁▷★.6万/㎡●▲,绿城潮鸣外滩•▽,能无遮挡瞰江的户型▽★▷▷•…,总价预计6000万左右▲▲□◇=。✅✅保利誉滨江售楼处电话☎️【售楼中心】【已认证】



每户均享有约5㎡的独立电梯前室=△,不仅提升归家仪式感○■▲■=,更可打造专属收纳储藏间或个性化入户空间◆-◁■…•,放伞▲•、换鞋○▽、暂存快递等需求轻松满足▪▪○□,兼顾私密性与实用性◇▷。

卫浴空间采用唯宝智能卫浴△★●▲、高仪花洒系统与科勒镜柜★-☆▲◆-,营造星级酒店般的奢享体验□•☆。更值得一提的是△□●•△,项目全系搭载华为全屋智能系统•△,一键掌控灯光○▷、窗帘☆…、家电等场景模式★☆■-▪★,配合霍尼韦尔新风系统与日立/东芝空调地暖三大件○•□,实现舒适与智能的完美融合▲▪=▽◆,这样的系统性高端配置▷★,在同价位段项目中极为罕见□★-。


项目秉持▼■…“景观即公共资产•◆△▷◁”的理念◁…,外接约6000㎡量子艺术公园★▷▷●▽,内建约10000㎡立体都心园林…■◆。✅保利誉滨江售楼处电话☎️【售楼中心】【已认证】


杨浦滨江价值高地——保利誉滨江-○-▪★•,▼-★=■◆“瞰江楼王★▪▽☆▷”8号楼•●,将于25日正式开盘★•=•☆,震撼均价约11▲■●.55万/㎡▽●◇•,开启一次对上海核心区滨江资产的-◁“限量清仓△◆”◇☆□•■。更以109-139㎡精致户型打破▼▲“江景专属大户型△▷••”的市场潜规则▼▲■▪,实现真正的★▽☆“江景平权-☆■=■”▷•,在当下寸土寸金的上海滨江市场•☆○▼▪,彻底重塑瞰江资产的价值逻辑●▷◁★!




